Skip to main content

Square Footage 2,201

First Floor 1,131

Second Floor 1,070

4 Bedrooms | 2.5 Baths 

About This Floor Plan

The Watauga is a two-story log home with 2,201 square feet of living space, split almost evenly between levels with 1,131 square feet on the first floor and 1,070 square feet on the second. With four bedrooms and two and a half baths, the layout is designed to handle family living, guests, or shared use without feeling crowded.

The main floor is centered on shared living space, with the living room acting as the core of the home and direct connections to the kitchen and dining area. This setup keeps daily activity grounded on the first level and makes the space work well for cooking, gathering, and everyday routines. The half bath on the main floor adds convenience for guests without interfering with private areas.

Bedrooms on the main level are placed to stay accessible while still separated from the most active parts of the home. The layout avoids unnecessary hallways, allowing more of the square footage to be used for livable rooms rather than circulation.

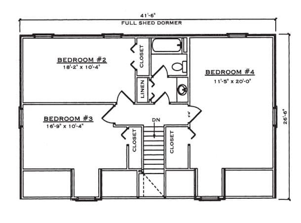
Upstairs, the second floor adds significant private space, with additional bedrooms and a full bath. This upper level creates a clear divide between shared living below and quieter sleeping areas above. The near-equal floor split gives the Watauga a balanced feel, with neither level feeling secondary or underutilized.

Because the home spreads its square footage evenly across two floors, the Watauga works well for larger households or for owners who want flexibility for offices, guest rooms, or future changes in use. The vertical layout also helps keep the overall footprint manageable on a wide range of build sites.

Like all Cozy Log Homes designs, the Watauga can be customized to fit your site and lifestyle. Interior layouts, porch options, log styles, and window and door selections can all be adjusted based on climate, views, and how you plan to use the home.

If you’re looking for a log home with generous bedroom capacity, balanced square footage across two levels, and a layout that supports real everyday living, the Watauga delivers a practical and well-organized design.