Skip to main content

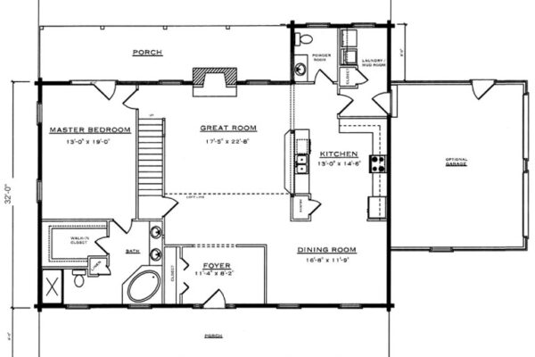
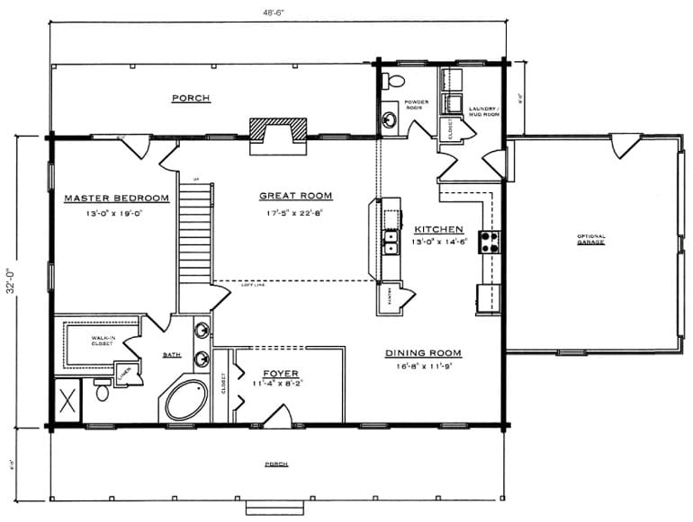
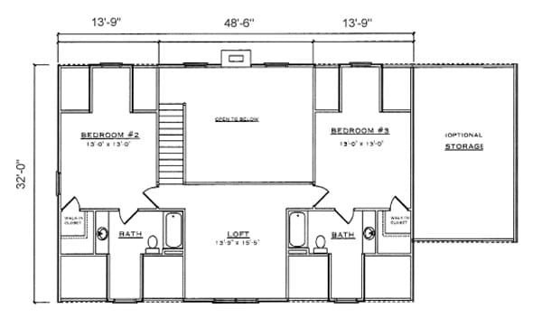
Square Footage 2,876

First Floor 1,662

Second Floor 1,214

3 or 4 Bedrooms | 3.5 Baths 

About This Floor Plan

The Tellico cabin is a spacious log home design created for comfortable living and gathering. With a well-planned layout and generous living areas, this cabin works well as a full-time residence, vacation home, or family retreat.

The design focuses on open common spaces paired with private rooms, making it easy to entertain while still maintaining comfort and separation where needed. The Tellico delivers classic log cabin style while keeping the layout practical and livable.

As with all Cozy Log Homes packages, the Tellico cabin is fully customizable. You can modify the floor plan, choose your preferred log style, and select window and door options to match your climate and building site. All materials are kiln-dried, inspected, and built to perform in a wide range of environments.

If you’re looking for a log cabin design that offers extra space with timeless appeal and flexibility, the Tellico is a strong option for building anywhere in the country.