Skip to main content

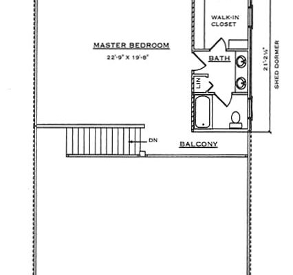
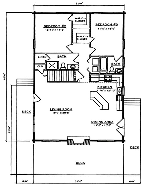
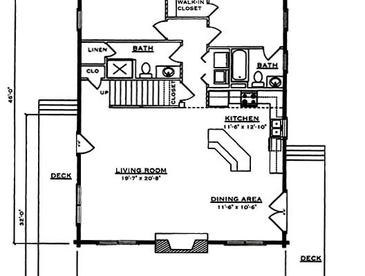
Square Footage 2,200

First Floor 1,472

Second Floor 728

3 Bedrooms | 3 Baths 

About This Floor Plan

The Sylva cabin is a thoughtfully designed log home that offers a comfortable mix of open living space and private areas. This cabin works well as a full-time residence, vacation home, or quiet retreat in rural or scenic locations.

The layout emphasizes usable square footage and an easy flow between rooms, making the home practical for daily living and simple to maintain. The Sylva delivers classic log cabin character while keeping the design efficient and livable.

Like all Cozy Log Homes packages, the Sylva cabin is fully customizable. You can adjust the floor plan, select from multiple log styles, and choose window and door options to suit your climate and building site. All logs are kiln-dried, inspected, and built to perform in a wide range of environments.

If you’re looking for a log cabin design that combines traditional style with everyday functionality, the Sylva is a dependable choice for building anywhere in the country.