Skip to main content

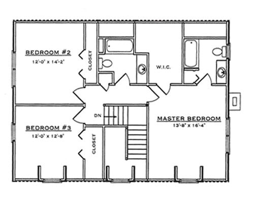
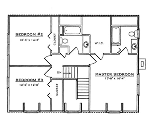
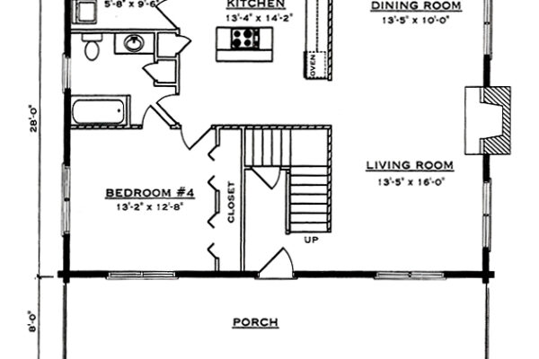
Square Footage 2,075

First Floor 1,064

Second Floor 1,011

4 Bedrooms | 3 Baths 

About This Floor Plan

The Seminole cabin is a well-sized log home design that balances open living areas with private spaces. This layout works well as a full-time residence, vacation home, or second property in a variety of settings.

The design focuses on comfort and efficient use of space, with a floor plan that feels open without being oversized. The Seminole delivers traditional log cabin character while remaining practical for everyday living.

As with all Cozy Log Homes packages, the Seminole cabin is fully customizable. You can modify the floor plan, choose your preferred log style, and select window and door options based on your climate and building site. All materials are kiln-dried, inspected, and built to perform across a wide range of environments.

If you want a log cabin design that offers flexibility, comfort, and long-term durability, the Seminole is a solid option for building anywhere in the country.