Skip to main content

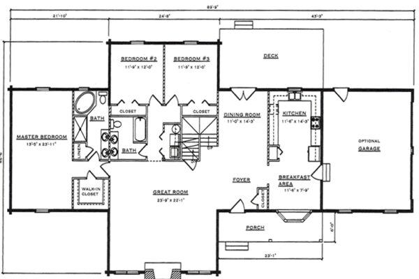
Square Footage 2,766

First Floor 2,262

Second Floor 504

4 Bedrooms | 2 Baths 

About This Floor Plan

The Ridgetop cabin is a log home design built to take advantage of scenic views and open surroundings. Its layout works well for a primary residence, vacation home, or mountain retreat where outdoor connection matters.

The design emphasizes open living areas that feel bright and spacious, making the most of natural light and sightlines. The Ridgetop delivers classic log cabin style while keeping the layout functional and comfortable for everyday use.

Like all Cozy Log Homes packages, the Ridgetop cabin is fully customizable. You can adjust the floor plan, select from multiple log styles, and choose window and door options to suit your climate and building site. All logs are kiln-dried, inspected, and built to perform in a wide range of environments.

If you’re looking for a log cabin design that pairs traditional character with a strong sense of place, the Ridgetop is a dependable choice for building anywhere in the country.