Skip to main content

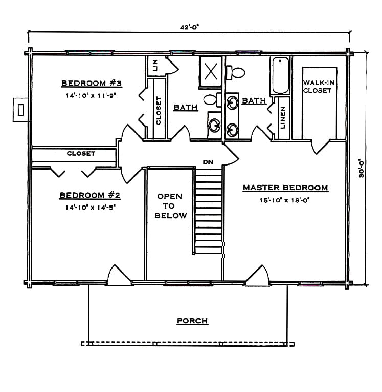
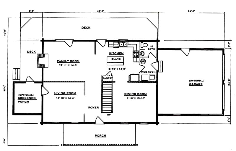
Square Footage 2,372

First Floor 1,260

Second Floor 1,112

3 Bedrooms | 2.5 Baths 

About This Floor Plan

The Plantation cabin is a larger log home design built for comfortable living and entertaining. With an expansive layout and generous living spaces, this cabin works well as a full-time residence, vacation home, or multi-generational retreat.

The design offers a natural flow between gathering areas and private rooms, making it well suited for families or homeowners who want extra space. The Plantation delivers classic log home character while maintaining practical room sizes and everyday functionality.

As with all Cozy Log Homes packages, the Plantation cabin is fully customizable. You can modify the floor plan, choose your preferred log style, and select window and door options to match your climate, location, and lifestyle. All materials are kiln-dried, inspected, and built to perform in a wide range of conditions.

If you’re looking for a log cabin design that provides ample space with timeless style and flexibility, the Plantation is a strong option for building anywhere in the country.