Skip to main content

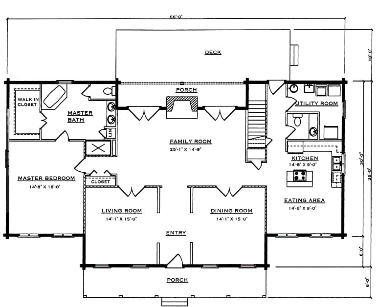
Square Footage 4,315

First Floor 2,071

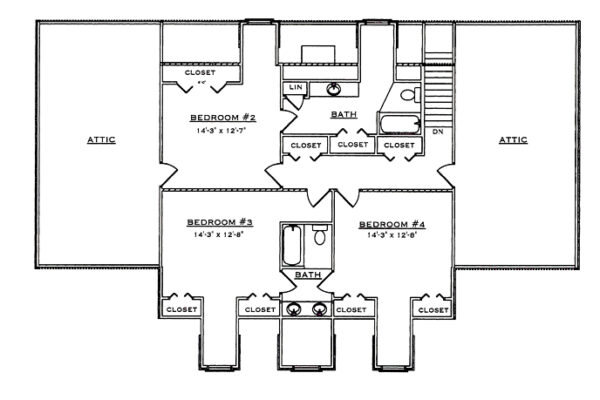
Second Floor 2,244

4 Bedrooms | 3.5 Baths 

About This Floor Plan

The Nashville cabin is a spacious log home design that blends traditional log style with a layout suited for everyday living. With generous living areas and a balanced floor plan, this cabin works well as a full-time residence, vacation home, or family retreat.

The design emphasizes comfort and functionality, offering open gathering spaces along with well-defined rooms. The Nashville maintains classic log cabin character while providing the space and flow expected in a modern home.

Like all Cozy Log Homes packages, the Nashville cabin is fully customizable. You can adjust the floor plan, select from multiple log styles, and choose window and door options based on your climate and building site. All logs are kiln-dried, inspected, and built to perform across a wide range of environments.

If you’re looking for a log cabin design that offers room to grow with timeless appeal, the Nashville is a dependable option for building anywhere in the country.