Skip to main content

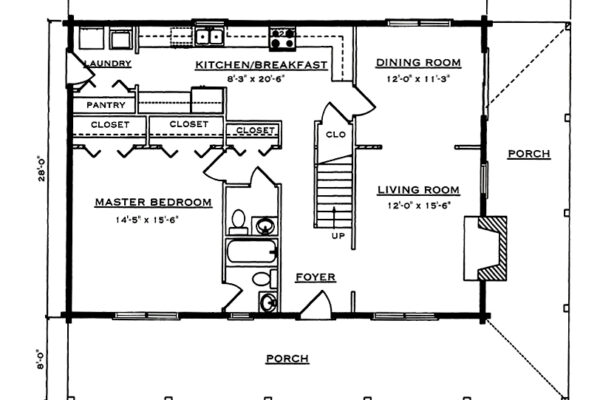
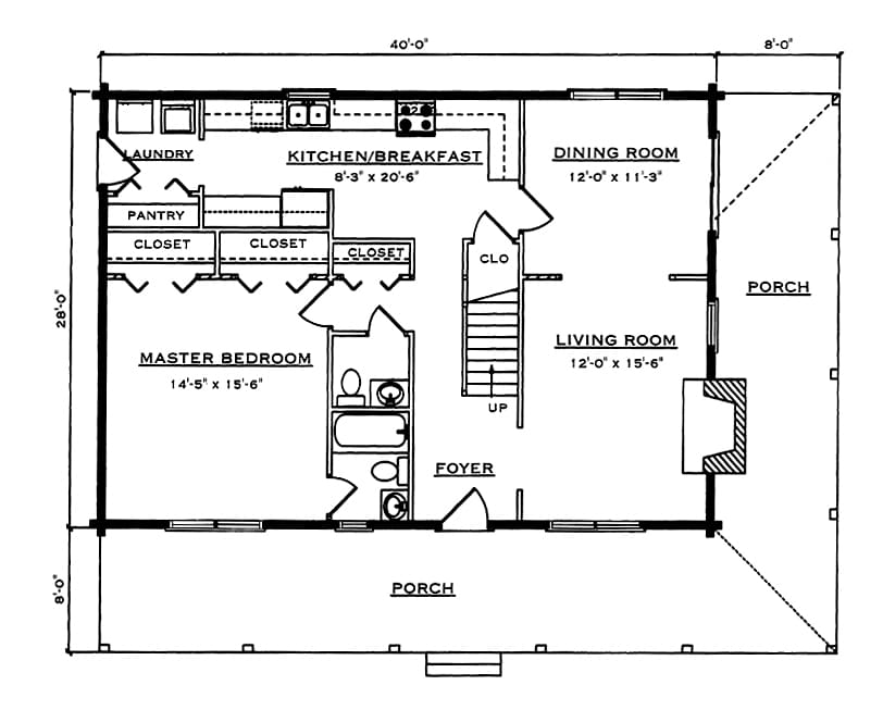
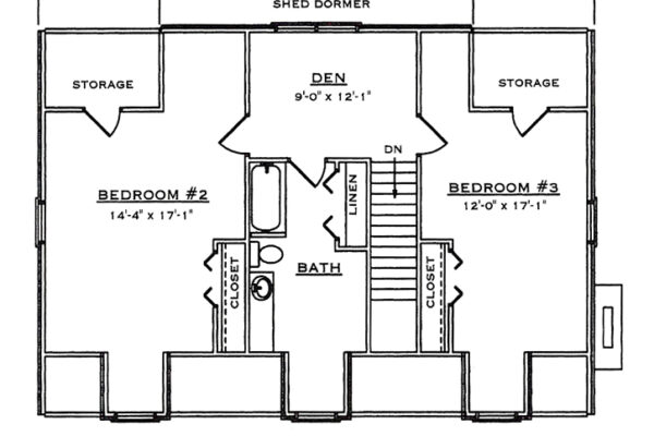
Square Footage 2,185

First Floor 1,120

Second Floor 1,065

3 Bedrooms | 2.5 Baths 

About This Floor Plan

The Morgan cabin is a practical log home design that offers a comfortable living layout with a straightforward footprint. This cabin works well as a primary residence, vacation retreat, or investment property.

The design focuses on usable square footage and an easy flow between rooms, making everyday living simple and efficient. The Morgan delivers traditional log cabin style while keeping the layout functional and easy to maintain.

As with all Cozy Log Homes packages, the Morgan cabin is fully customizable. You can modify the floor plan, choose your preferred log style, and select window and door options to suit your climate and building location. All materials are kiln-dried, inspected, and built to perform in a wide range of environments.

If you’re looking for a dependable log cabin design with classic appeal and flexible options, the Morgan is a strong choice for building anywhere in the country.