Skip to main content

Square Footage 3,203

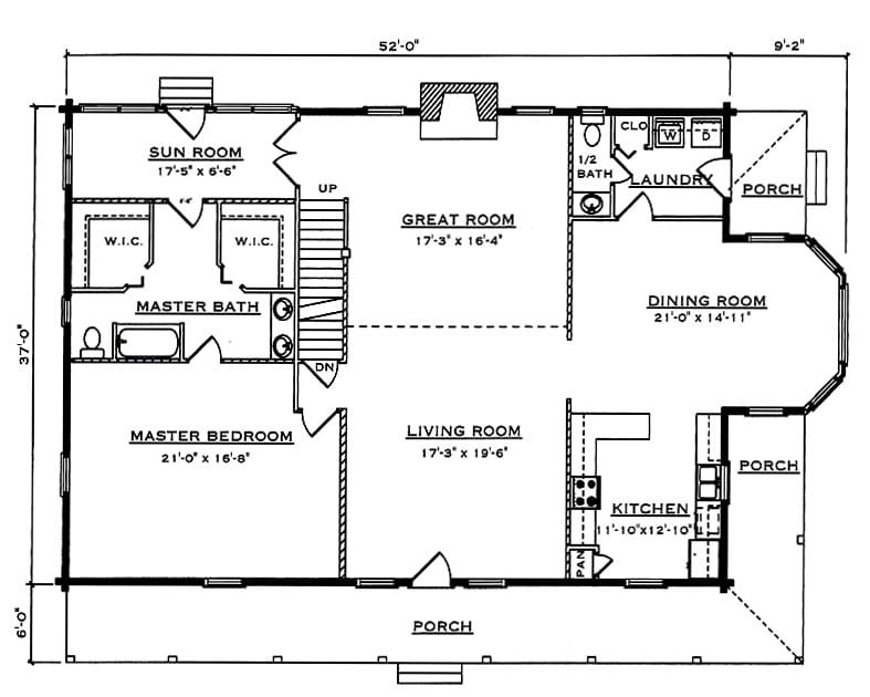
First Floor 2,027

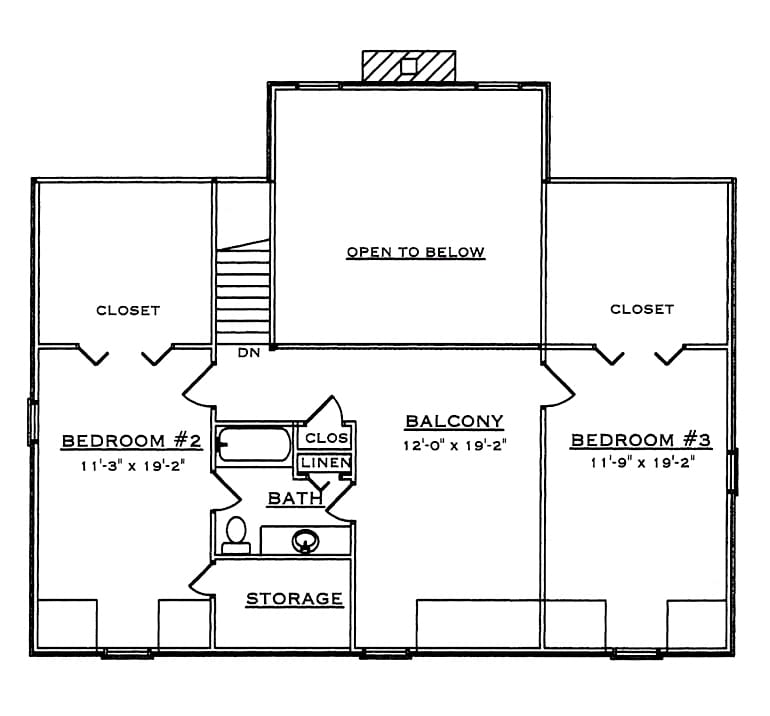
Second Floor 1,176

3 Bedrooms | 2.5 Baths 

About This Floor Plan

The Lenoir cabin is a versatile log home design that offers a smart balance of open living space and private areas. This layout works well as a full-time residence, vacation home, or secondary property in a wide range of settings.

The floor plan is designed for comfortable daily living, with efficient room flow and practical square footage. The Lenoir delivers classic log cabin character while remaining easy to furnish, heat, and maintain.

Like all Cozy Log Homes packages, the Lenoir cabin can be customized to match your needs. You can adjust the floor plan, select from multiple log styles, and choose window and door options based on your climate and building site. All logs are kiln-dried, inspected, and built to perform across varying environments.

If you want a log cabin design that combines flexibility, comfort, and long-term durability, the Lenoir is a dependable choice for building anywhere in the country.