Skip to main content

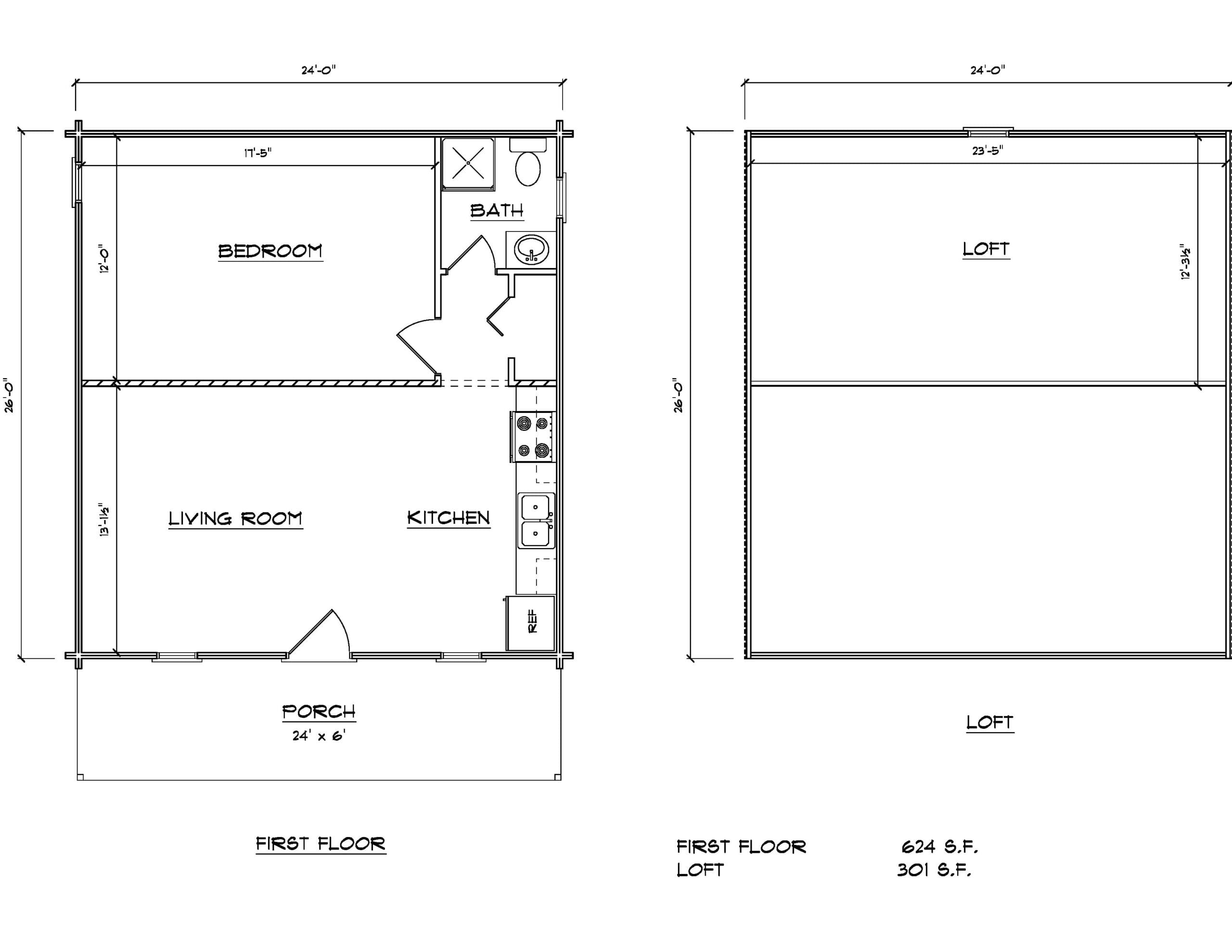
Square Footage 925

First Floor 624

Loft 301

1 Bedroom | 1 Bath

About This Floor Plan

The Lakeview D is the largest option in the Lakeview series and offers a well-balanced layout with generous main-floor living space and a substantial loft. The design supports multiple sleeping areas and comfortable shared space, making it ideal for families, extended visits, or income-producing rentals. Despite its size, it maintains the efficient, build-friendly nature of the EZ Build line.