Skip to main content

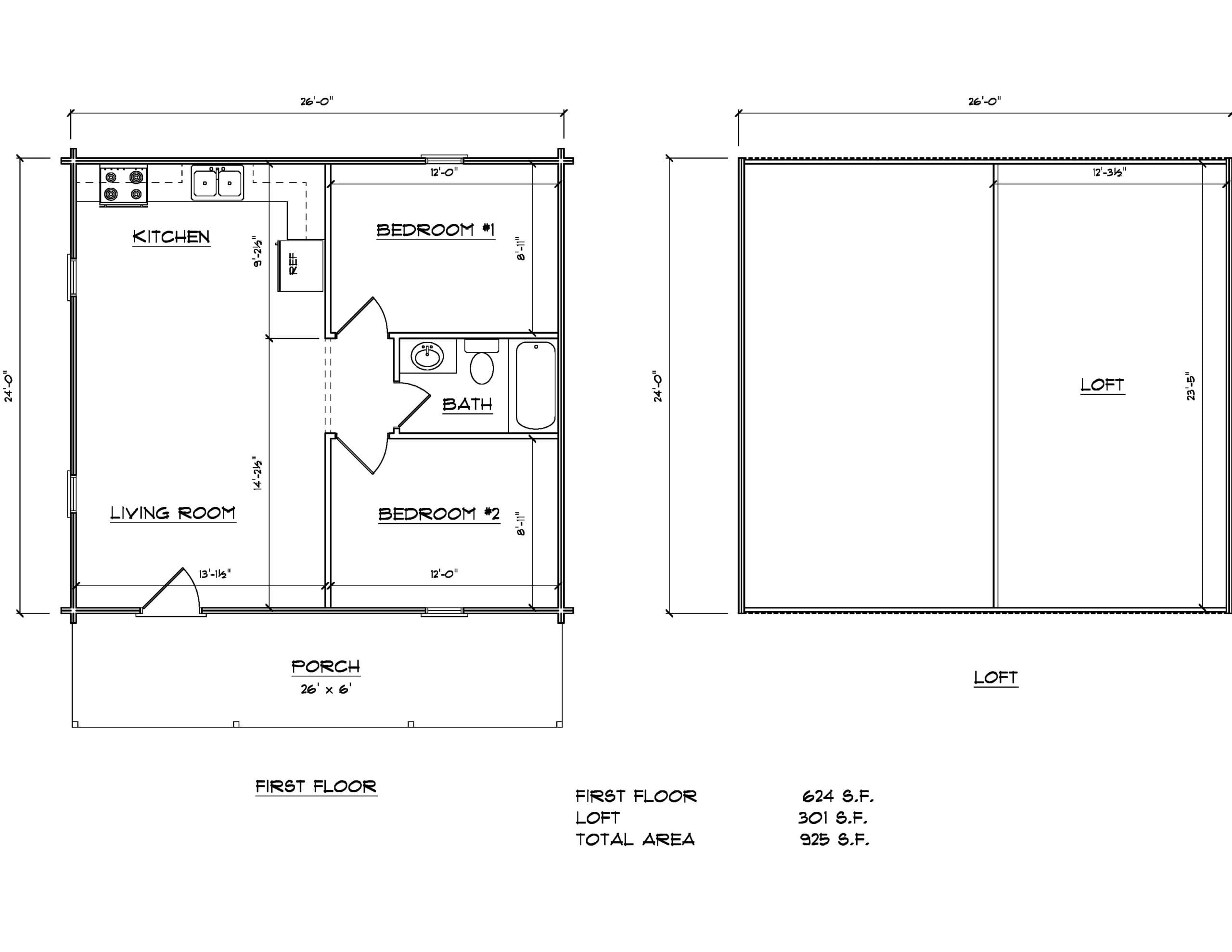
Square Footage 925

First Floor 624

Loft 301

2 Bedroom | 1 Bath

About This Floor Plan

The Huntsman D is the largest in the Huntsman series and offers the most balanced layout. The main floor provides clearly defined living, kitchen, bedroom, and bathroom spaces, while the loft adds a substantial second sleeping or living area. The blueprint shows strong separation between shared spaces and private areas, making the cabin comfortable for multiple occupants. This EZ Build cabin works well as a small full-time residence, family getaway, or income-producing rental. The added square footage and loft space give the Huntsman D flexibility while still maintaining the compact, efficient nature of the EZ Build line.