Skip to main content

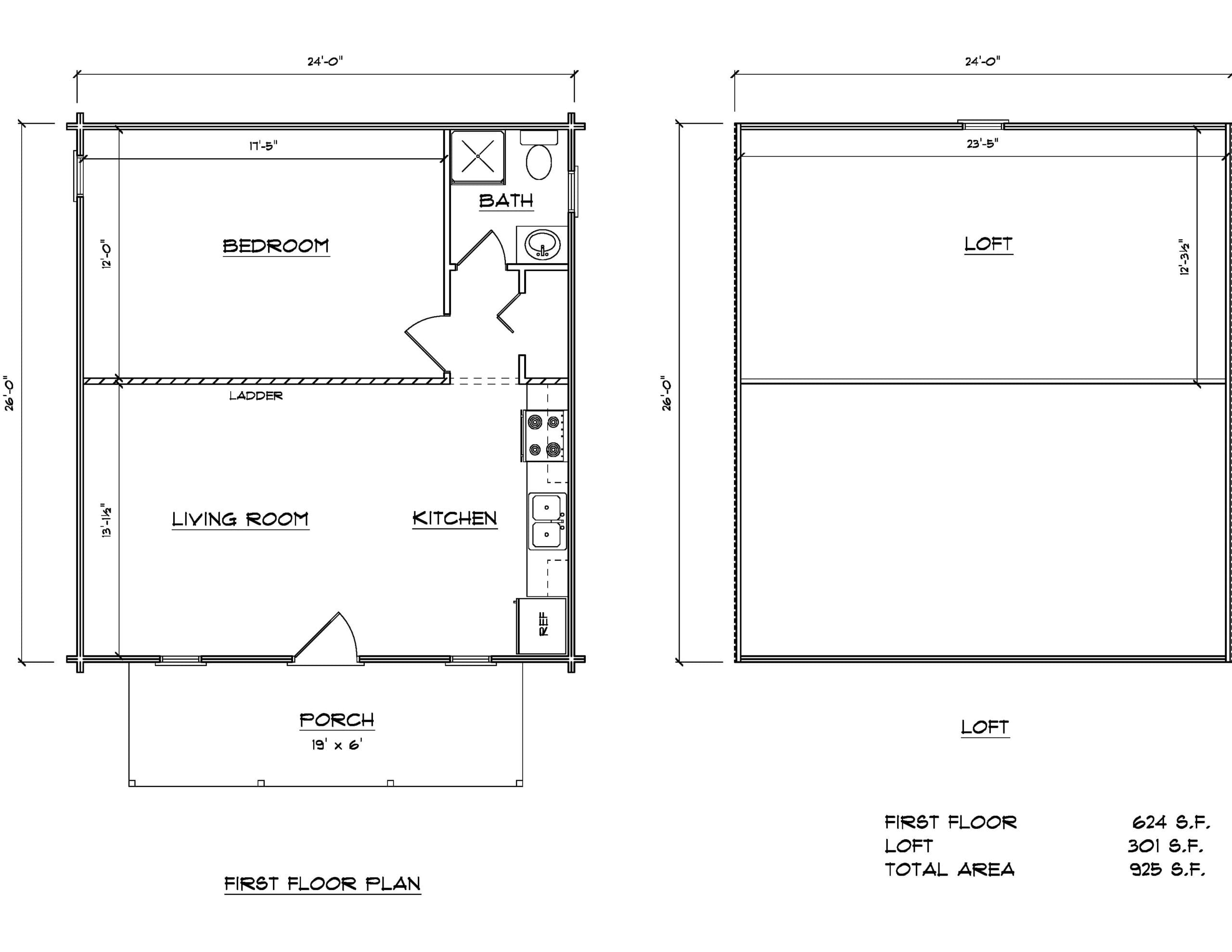
Square Footage 925

First Floor 624

Loft 301

1 Bedroom | 1 Bath

About This Floor Plan

The Hilltop D is the most spacious option in the Hilltop series. The main floor offers a generous living area, kitchen, bedroom, and bathroom, while the loft adds substantial additional space above. The layout supports multiple occupants without feeling cramped and allows for clear separation of living and sleeping zones. As an EZ Build cabin, the Hilltop D is ideal for families, extended stays, or owners who want a compact but comfortable log cabin that can serve many purposes over time.