Skip to main content

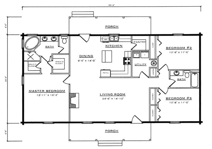
Square Footage 1,650

First Floor 1,650

3 Bedrooms | 2 Baths 

About This Floor Plan

The Hartford cabin is a well-balanced log home design that offers comfortable living space without an oversized footprint. This layout works well as a full-time residence, vacation home, or second property in rural or scenic locations.

The floor plan is designed for everyday functionality, with an open feel that makes the space easy to use and furnish. The Hartford maintains the classic look of a traditional log cabin while keeping the layout practical and efficient.

Like all Cozy Log Homes packages, the Hartford cabin can be customized to fit your needs. You can adjust the floor plan, select from multiple log styles, and choose window and door options based on your climate and building site. All logs are kiln-dried, inspected, and built to perform in a wide range of environments.

If you want a log cabin design that blends traditional style with modern livability, the Hartford is a dependable option for building anywhere in the country.