Skip to main content

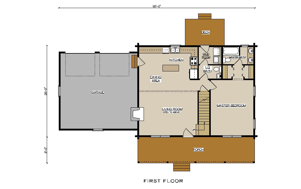
Square Footage 1,711

First Floor 1,008

Second Floor 703

Garage 576

3 Bedrooms | 2.5 Baths 

About This Floor Plan

The Decatur is a one-story log home designed around simple, efficient living with all primary spaces on a single level. The layout emphasizes ease of movement and everyday comfort, making it a strong option for full-time living, a retirement home, or a low-maintenance retreat.

At the center of the plan, the main living area connects directly to the kitchen and dining space, creating a shared core that works well for daily routines and casual gatherings. The arrangement keeps the home feeling open without overextending the footprint, and the flow between rooms is straightforward and practical.

Bedrooms are positioned away from the main living space to provide privacy while still remaining convenient. The plan avoids unnecessary hallways, allowing more of the square footage to be used for livable rooms rather than circulation. Window placement throughout the design helps bring in natural light and reinforces the connection between indoor spaces and the surrounding landscape.

Because the Decatur is entirely single-level, it works well on a wide range of build sites and appeals to homeowners who want long-term accessibility without sacrificing comfort or usable space. The layout is easy to furnish, easy to maintain, and adaptable to different lifestyles.

Like all Cozy Log Homes designs, the Decatur can be customized to fit your needs. Interior layouts, porch options, log styles, and window and door selections can all be adjusted based on your site, climate, and how you plan to use the home.

If you’re looking for a log home that prioritizes straightforward living, functional flow, and classic cabin character, the Decatur offers a balanced design that lives comfortably without excess.