Skip to main content

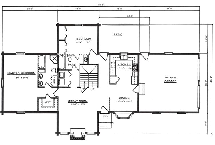
Square Footage 1,826

First Floor 1,505

Second Floor 321

3 Bedrooms | 2 Baths 

About This Floor Plan

The Cherokee cabin is a spacious log home design built for comfort, functionality, and long-term use. With a larger footprint and a well-balanced layout, this cabin works well as a full-time residence, family getaway, or rental property in rural, mountain, or wooded settings.

This design offers an efficient flow between living spaces, giving you room to gather while still maintaining privacy where it matters. The Cherokee cabin blends traditional log home character with practical planning, making it easy to furnish, heat, and maintain.

As with all Cozy Log Homes packages, the Cherokee cabin is fully customizable. You can modify the floor plan, select from multiple log styles, and choose window and door configurations that suit your climate and lifestyle. All logs are kiln-dried, carefully inspected, and built to perform across varying weather conditions.

If you want a log cabin that offers more space without losing the classic log home feel, the Cherokee is a dependable option that fits a wide range of build locations.