Skip to main content

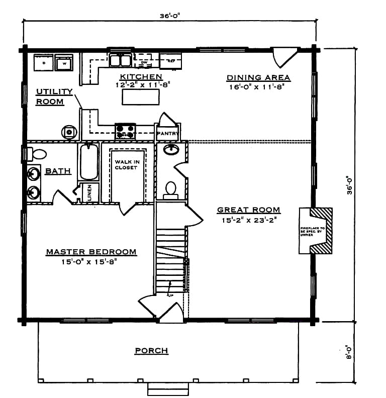
Square Footage 1,442

First Floor 1,296

Second Floor 826

3 Bedrooms | 2.5 Baths

About This Floor Plan

The Boone cabin is a classic log home design that balances rustic style with practical living space. This cabin works well as a primary residence, vacation home, or mountain retreat, and it adapts easily to a wide range of climates and building sites.

This design features a straightforward layout that maximizes usable square footage while keeping construction efficient. The Boone cabin pairs traditional log construction with modern building standards, making it a solid option for homeowners who want the log home look without unnecessary complexity.

Like all Cozy Log Homes packages, the Boone cabin can be customized to fit your needs. You can adjust the floor plan, choose your preferred log style, and select window and door options that match your location and budget. Materials are kiln-dried, inspected, and built to perform in both cold and warm environments.

If you’re looking for a dependable log cabin design with timeless appeal and flexible options, the Boone is a strong choice for building anywhere in the country.