Skip to main content

Square Footage 2,284

First Floor 1,356

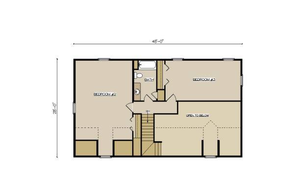
Second Floor 928

3 Bedrooms | 2 Baths 

About This Floor Plan

The Athens is a two-story log home with 2,284 square feet of living space, divided between 1,356 square feet on the main floor and 928 square feet on the second level. The design uses its square footage efficiently, keeping the main floor focused on shared living while reserving the upper level for private spaces.

On the first floor, the living room anchors the plan and connects naturally to the kitchen and dining areas. This creates a central zone for everyday activity without unnecessary separation between spaces. The layout supports daily routines and gatherings while keeping movement through the home simple and intuitive. Bedrooms and bathroom placement on this level allow for comfortable use without isolating rooms from the main living area.

The second floor provides additional bedrooms and bathroom space, creating a clear separation between shared and private zones. This upper level works well for family living or guest accommodations, giving sleeping areas distance from main-floor activity. The vertical layout allows the Athens to offer generous living space without expanding the overall footprint.

With three bedrooms and two bathrooms spread across two levels, the Athens works well as a full-time residence, vacation home, or rental property where privacy and defined living zones matter. The plan balances openness on the main floor with quieter spaces above, making it comfortable for both daily living and longer stays.

Like all Cozy Log Homes designs, the Athens can be customized to fit your build site and lifestyle. Interior layouts, porch configurations, log styles, and window and door selections can be adjusted based on climate, views, and how you plan to use the home.

If you want a log home that uses its square footage efficiently across two levels while keeping everyday living grounded on the main floor, the Athens offers a practical and well-structured design.