Skip to main content

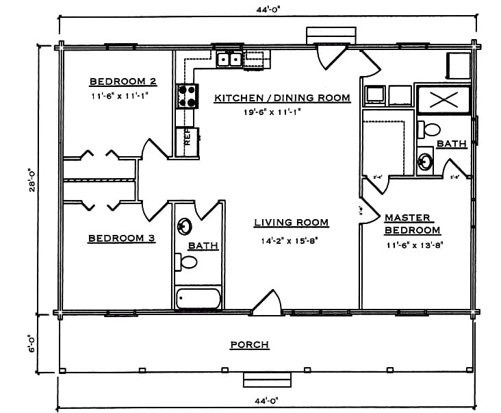
Square Footage 1,232

First Floor 1,232

3 Bedrooms | 2 Bath

About This Floor Plan

The Alcoa is a well-balanced log home design that blends open living space with practical, everyday comfort. With a spacious main floor and a smart bedroom layout, this plan works well as a full-time residence or a second home retreat.

The open great room creates a natural gathering space, connecting the living area, kitchen, and dining space for easy flow and visibility. Large windows bring in natural light and highlight the warmth of log construction. The kitchen offers ample counter space and storage, making it functional for daily living and entertaining.

Bedrooms are positioned for privacy, giving homeowners and guests their own quiet spaces. The layout provides flexibility for families, couples, or those who want room for visitors without wasted square footage.

The Alcoa is a solid choice if you want a classic log home feel with a layout that makes sense for modern living. It is efficient, comfortable, and adaptable to different build locations and lifestyles.